ORIGINAL RESEARCH ARTICLE

New Ways of Working in Academia: Maneuvering in and with Ambiguity in Workspace Design Processes

Grégory Jemine1*, François Pichault1, and Christophe Dubois2

1HEC – Management School, Université de Liège, Liège, Belgium
2Faculty of Social Sciences, Université de Liège, Liège, Belgium

 

Citation: M@n@gement 2022: 25(4):16–30 - http://dx.doi.org/10.37725/mgmt.v25.4447.

Handling Editor: Viviane Sergi

Copyright: © 2022 Jemine et al., This is an Open Access article distributed under the terms of the Creative Commons Attribution-NonCommercial 4.0 International License (http://creativecommons.org/licenses/by-nc/4.0/), permitting all non-commercial use, distribution, and reproduction in any medium, provided the original work is properly cited.
Published by AIMS, with the support of the Institute for Humanities and Social Sciences (INSHS).

Received: 24 February 2020; Accepted: 19 September 2021; Published: 15 December 2022

Competing interests and funding: This work was supported by the ‘Fonds de la Recherche Scientifique (FNRS)’ and the ‘Fonds Wettenschappelijk Onderzoek – Vlaanderen (FWO)’ under EOS Project n°O017618F.

*Corresponding author: Grégory Jemine, Email: gjemine@uliege.be

 

Abstract

As a result of growing financial pressures and changing space demands, universities are increasingly looking to modernize and rationalize their workspaces through projects of New Ways of Working (NWoW). So far, extant research has mostly investigated the managerial construct of NWoW and its outcomes on organizational members, leaving the design process leading NWoW to be implemented in local contexts understudied. By contrast, the present study sets out to redefine NWoW as open-ended projects of organizational change that are unavoidably ambiguous and conflictual, hence seeking to overcome the tendency to conceal tensions arising at early stages of the change process under the abstract black-box of ‘resistance to change’. It is shown that ambiguity, simultaneously understood as an organizational problem causing tensions and as a rhetorical resource enabling collective action, plays a major role in the design process of such equivocal projects. This paper further advances our understanding of ambiguity as a multifaceted concept to bridge between individual rationalities and collective decision-making in the course of complex design processes.

Keywords: New Ways of Working; Ambiguity; Academic workspaces; Organizational change; Workspace design

In the last decade, several private firms and public institutions committed to projects of ‘New Ways of Working’ (NWoW), disrupting the conventional spatial settings of their workspaces by promoting open plans and shared workstations over closed offices and assigned desks, adopting innovative technologies, and promoting cultural changes (Demerouti et al., 2014; Jemine et al., 2021; Kingma, 2019). These changes in physical working environments have resulted in new ways of experiencing work that have been extensively documented by researchers through post-occupancy studies (e.g., Engelen et al., 2019; Lai et al., 2021). However, to this day, the processes through which NWoW projects are implemented in organizational contexts have remained poorly understood (Jemine, 2021). The literature on NWoW has developed a tendency to conceal the conflicts and negotiations that are part of the design stage of NWoW under the evasive black-box of ‘resistance to change’ (e.g., Peters, 2014; Vitasovich et al., 2016). The change process is often used as a scapegoat to distinguish, in retrospect, between ‘good’ and ‘bad’ cases of NWoW implementation (Brunia et al., 2016) while remaining understudied (Jemine, 2021).

To provide more substantial insight into how NWoW projects are being introduced and implemented in organizations, this paper emphasizes ambiguity as a core feature of NWoW design that has remained overlooked. As evidenced by extant studies, NWoW, a vague yet convenient label to rationalize workspaces under discourses of innovation and modernity, can take a variety of forms and meanings in local settings (De Leede, 2017). Inevitably, NWoW projects raise complex and open-ended questions on how future offices should be redesigned to sustain the organization of work in the long term and on how work practices should evolve in an ever-changing world of work (Aroles et al., 2019). Hence, it is assumed that NWoW projects, which are expected to unfold over several years and have wide-ranging implications for the organization as a whole (Jemine et al., 2020a), should generate considerable ambiguity in the design stage. Indeed, NWoW can be viewed as a ‘management fashion’ which, similarly to other management fashions (e.g., Giroux, 2006), leads organizational members to develop conflicting interpretations and viewpoints on what it means and how it should be implemented (Jemine, 2021). Ambiguity, therefore, is expected to play different roles in these complex change projects, as organizational members have to navigate, make sense of, reduce, and/or sustain ambiguity throughout the design stage of NWoW.

In the paper, the role of ambiguity in NWoW design is investigated through a case study taking place in a university. Universities have often been theorized as particularly ambiguous work contexts, characterized by high levels of autonomy, a low degree of formalization, and shared power between peers (e.g., Salancik & Pfeffer, 1974). Additionally, until now, research on NWoW projects in higher education institutions has remained scarce and mostly designed around post-occupancy surveys (Berthelsen et al., 2018; Parkin et al., 2011). Yet, such projects could become a growing trend in the sector due to increasing financial pressures and the rise of new technologies (Berthelsen et al., 2018; Hutson & McAlinden, 2013; Veer & Dobele, 2018). Because space reorganization endeavors have been repeatedly denounced by academics as manifestations of increased managerialism in universities’ governance (Baldry & Barnes, 2012; Kuntz et al., 2012), NWoW projects may be viewed as sites of contention, in which academics seemingly display fierce resistance toward alternative configurations of their workspaces (Berthelsen et al., 2018; Samson, 2013). It follows that these projects are likely to be highly ambiguous episodes in the life of universities, where managers’ and academics’ strategic agendas collide with an open-ended NWoW project, in the course of which academics may find opportunities to exert power and influence the project’s outcomes. It is precisely the encounter of a vague management fashion with conflicting priorities and multiple interpretations arising from organizational members that makes universities a fertile ground for the study of ambiguity in NWoW projects. Consequently, this paper raises the following research questions:

RQ 1: How does the specific context of higher education institutions influence the unfolding of NWoW projects in these organizations?

RQ 2: How do organizational actors maneuver in and with ambiguity in the course of NWoW projects?

This paper is structured as follows. First, a literature review is conducted with the aim of (1) clarifying what NWoW encompass and (2) uncover the peculiarities of NWoW projects as they unfold in academic contexts. Then, the potential of ambiguity as an analytical concept to study NWoW projects is underlined through four theoretical conceptions of ambiguity, which are political ambiguity (March, 1978), interpretative ambiguity (Weick, 2015), strategic ambiguity (Eisenberg, 1984), and pragmatic ambiguity (Giroux, 2006). Taken together, these perspectives make it possible to envision ambiguity as a property of events orienting the design activities of organizational members involved in NWoW projects, and as a rhetorical construction that actors promote and sustain purposefully (Sillince et al., 2012). The role of ambiguity in NWoW design processes is then explored through a case study conducted in the Management Faculty (MAF) of a Belgian University (B.U.).

Theoretical background

NWoW: In quest of stable grounds

‘New Ways of Working’, commonly abbreviated NWoW (e.g., Brunia et al., 2016) or ‘NWW’ (e.g., Kingma, 2019), is a contemporary business trend of which the origin can be traced back to Dutch consulting companies and management books (e.g., Veldhoen, 2005). In the last decade, the term has gained significant traction as several organizations undertook large-scale projects of modernization advertised as ‘NWoW projects’ (Jemine et al., 2020a). Consulting companies also contributed to disseminate the label through events, websites, and interventions within firms (De Leede, 2017). NWoW generally refers to a set of supposedly innovative transformations in the workplace that commonly include – but are not limited to – (1) open, non-attributed, and activity-based workspaces, (2) flexible work practices supported by new communication technologies, and (3) a managerial culture promoting employees’ autonomy, responsibility, and empowerment (Bijl, 2011; De Leede, 2017; Demerouti et al., 2014; Jemine et al., 2020b; Lai et al., 2021). As such, NWoW has been frequently portrayed by the ‘3B’ triptych that encompasses Bricks (modern work environments), Bytes (innovative technologies), and Behaviors (cultural and managerial changes) (Baane et al., 2010; Kingma, 2019; Kok, 2016).

Several scholars have attempted to bring clarifications to what the perimeter of NWoW should be (e.g., Blok et al., 2012; Demerouti et al., 2014; Gerards et al., 2018). For Baane et al. (2010), NWoW refers to time and place independent work, self-management, and flexible employment relations. In another version, NWoW encompasses workplace, technological, managerial, and cultural changes (Blok et al., 2012). Still others have argued that NWoW could also include output-based management, knowledge accessibility, and flexible working relations (Gerards et al., 2018). Yet, at the end of the day, there is no agreement to be found in the literature on the constituting practices of NWoW (Jemine, 2021). Existing case studies of NWoW projects (e.g., Gorgievski et al., 2010; Jemine et al., 2020b; Kingma, 2019) suggest that they primarily focus on workspace changes, while cultural transformations and technological innovations vary in importance and ambition (Gorgievski et al., 2010; Jemine et al., 2020a).

To advance our knowledge and provide stable grounds for studying NWoW, this present paper builds on two research assumptions. First, the task of determining what a NWoW project should or ought to entail is viewed as an ongoing work performed by the field actors themselves. Indeed, since the literature widely acknowledges the diversity of forms that NWoW can take in organizations (Jemine et al., 2020a; Kingma, 2019), one would logically assume that the content of a NWoW project is locally constructed. As a consequence, in a ‘constructionist’ perspective (Czarniawska, 2008), researchers should refrain from assuming ex ante what NWoW projects include or exclude, as this will be defined and negotiated by organizational members themselves. A second research assumption follows, which is that NWoW is first and foremost a business trend summoned in various firms to support projects of organizational change (Jemine et al., 2020a). Why and how this summoning occurs and unfolds is a question that has received little attention so far, as many existing studies of NWoW consist of ex post assessments of finished NWoW workspaces (e.g., Brunia et al., 2016; Engelen et al., 2019; Gerards et al., 2018; Lai et al., 2021) that do barely question the strategic motives underlying NWoW adoption or the process through which it is implemented. By contrast, we assume, in this paper, that NWoW translates into change projects that open up areas for negotiation (Jemine et al., 2020b).

In this picture, a crucial concept in NWoW studies has remained largely unexplored: ambiguity. Redesigning a workplace is a process that is by definition uncertain and ambiguous (Karasti et al., 2010). Actors involved in NWoW projects must plan for the long-term and design infrastructures that do not yet exist, which leaves room for doubt, risks, and reversals (Denis et al., 2011). Moreover, catchy fashions and labels such as NWoW are prone to generate increased ambiguity since they promote a set of ill-defined principles of workspace reorganization such as ‘flexible’ and ‘dynamic’ spaces, which, provided with an ‘aesthetically appealing design’ (Wyllie et al., 2012, p. 9), are supposed to enable ‘knowledge-sharing, faster and better collaboration’ (Kotesveld & Kamperman, 2011, p. 305). It is reasonable to expect that organizational members, when confronted with designing NWoW projects, have to deal with that definitional complexity and fuzziness. Consequently, this paper sets out to explore how organizational members maneuver in and with ambiguity in the design process of NWoW projects by investigating the case of a university involved in such a process.

NWoW in academia: Navigating a minefield

While few studies have directly addressed NWoW projects in higher education institutions, there is a growing literature on new ways of organizing space in academia that might be viewed as a manifestation of the neo-liberal turn in the sector (Kuntz et al., 2012). Scholars have explored various cases with similar features to what NWoW promoters encourage – although these cases do not always summon the NWoW acronym per se – and have usually depicted them as concrete manifestations of the New Public Management (NPM) movement within universities and as translations of increased managerialism in their governance (Baldry & Barnes, 2012; Berthelsen et al., 2018). It is also common to view these projects as the result of increasing financial pressures and changing space demands on universities (Pinder et al., 2009; Veer & Dobele, 2018). Because of the discourses of modernity on which it is built (Bijl, 2011), NWoW turns out to be a convenient label for legitimizing managerial attempts to rationalize academic workspaces (for instance, through open-plan offices) and new work practices (i.e., remote working and e-learning) under the promise of offering an innovative approach to research and teaching (Lancione & Clegg, 2013). A particularity of NWoW projects in the higher education sector lies in their highly political nature, as the contents of the change process underlying these projects are likely to generate tensions between managers and academics, notably on the expected value and benefits of these projects (Vitasovich et al., 2016).

To some extent, the existing literature has mirrored these tensions by delivering mixed results regarding new ways of organizing space in academic contexts. Analyses of the strategic motives underlying these projects often depart from the observation that traditional academic workspaces represent a significant cost for universities since they are chronically under-used (Baldry & Barnes, 2012). As many offices remain empty during teaching time, a trend that is further amplified by remote working, so-called ‘flexible’ offices (i.e., open, non-attributed, and activity based) are increasingly viewed as a more economic and optimized way of organizing academic workspaces (Muhonen & Berthelsen, 2021; Samson, 2013; Wilhoit et al., 2016). Moreover, it is also commonly assumed that rethinking spaces could foster informal communication, promote creativity, offer increased flexibility, retain high-quality staff and students, and strengthen team-based culture (Lansdale et al., 2011; Muhonen & Berthelsen, 2021; Veer & Dobele, 2018). From a managerial perspective, then, the attractiveness of NWoW projects may originate from the multiple benefits that they could potentially generate (Berthelsen et al., 2018).

However, when leaving aside the strategic intentions of the deciders and examining the outcomes of these projects instead, many contributions have reported undesirable effects of new office solutions on the academic staff. Post-occupancy surveys have repeatedly underlined a lower performance, a decrease in face-to-face interactions and unplanned encounters – including with students, a loss of autonomy, a lack of privacy and storage space, increased absenteeism, and lower levels of well-being overall (Baldry & Barnes, 2012; Berthelsen et al., 2018; Gorgievski et al., 2010; Kuntz et al., 2012; Lansdale et al., 2011; Muhonen & Berthelsen, 2021; Veer & Dobele, 2018). In light of these studies, the outcome of such projects in academia has rarely appeared to be appealing, although it has been argued that paying attention to specific factors (e.g., auditory privacy and support for creative activities) could mitigate some of these negative impacts (Lansdale et al., 2011; Parkin et al., 2011).

In this picture, the yawning gap between the strategic intentions behind NWoW projects and their outcome is particularly striking. One might wonder how the promising ‘conceived’ workspace could suddenly and, if we consider existing studies in academia, almost systematically (Baldry & Barnes, 2012; Berthelsen et al., 2018; Gorgievski et al., 2010; Vitasovich et al., 2016) turn into a hotly contested ‘lived’ space (Kingma, 2019). Scholars have provided initial responses by turning somewhat elusively toward the ‘change process’, arguing that the lack of user participation in the design had a negative impact (Gorgievski et al., 2010), and that users’ experience of lived spaces was largely dependent on change management strategies (e.g., Berthelsen et al., 2018; Brunia et al., 2016). However, most of these studies have adopted post-occupancy research designs, in which the change process itself remained barely touched upon or was seized retrospectively through interviewees’ discourses, hence providing limited information on the process leading to the implementation of these new academic workspaces. In the rare cases, where NWoW-like projects were addressed from a process perspective, the attention was primarily given to the evolution of work plans (Hutson & McAlinden, 2013) or changes in work practices (Van Marrewijk & Van den Ende, 2018) through time. As a result, and despite recent calls to pay more attention to the early design stages of such projects (e.g., Berthelsen et al., 2018; Veer & Dobele, 2018), we know relatively little about how NWoW projects come into existence. This observation does not solely apply to academia, as process studies of NWoW in other organizational contexts have remained fairly limited as well (Jemine et al., 2020a).

In this paper, it is argued that this gap comes with a risk of oversimplifying change processes and overstating the importance of change management practices. In NWoW studies conducted in universities, the change process often appears to be a convenient culprit to explain, in retrospect, academics’ resistance behaviors in flexible workspaces (e.g., Gorgievski et al., 2010; Vitasovich et al., 2016). Yet, it is likely that the observed resistances in NWoW projects cannot solely be explained by poor change management strategies (Jemine et al., 2021). In the same vein, whereas it has been argued that increasing user participation and engagement in the process should yield better results (e.g., Hutson & McAlinden, 2013; Pinder et al., 2009), the literature has often demonstrated that participation was not a miracle cure to solve all organizational tensions and resistances (e.g., Friedberg, 1997).

What these observations suggest is that processes leading to the implementation of NWoW projects in academia have remained understudied and have overlooked an essential component of organizational and academic life: power. This is surprising, since existing studies unanimously suggest that such projects induce power struggles between university managers and the academic staff. The first, confronted with a growing population of students (Van Marrewijk & Van den Ende, 2018) and in quest of financial efficiency (Baldry & Barnes, 2012; Wilhoit et al., 2016), perceives the move toward new space configurations as a rational solution to the problems faced by their university, and view in individual offices an old-fashioned ‘ivory tower’ to which academics clutch for dubious reasons such as maintaining prestige and status (Samson, 2013). Conversely, the second denounces a ‘managerial offensive’ to enforce performance standards in research and teaching (Baldry & Barnes, 2012, p. 243), usually depicts decision-makers as ill-informed and unaware of the true nature of academic work (Vitasovich et al., 2016), and tends to ‘see shared office as being counter to their academic practices’ (Hutson & McAlinden, 2013, p. 107). Many existing studies, then, indicate that new working environments in academic contexts are a scene of conflicts and political tensions (e.g., Baldry & Barnes, 2012; Berthelsen et al., 2018), while paradoxically providing few insights into how actors bargain around these tensions in the course of the design process of these environments.

In this paper, we posit that NWoW projects, understood as loosely defined and open-ended attempts to transform organizations, provide both managers and academics with a highly ambiguous context for exerting power and attempting to enhance their position within the organization (Crozier & Friedberg, 1980; Salancik & Pfeffer, 1974). We wish to challenge the assumption that the faculty staff is uninfluential in the course of such processes (Muhonen & Berthelsen, 2021). Rather, in the professional bureaucracies that are universities, it could reasonably be assumed that academics, far from being passive witnesses of a transformation project of their work contexts, will attempt to find opportunities to bargain, to mobilize resources, and to exert power in order to influence the project’s outcomes (Crozier & Friedberg, 1980). If we assume that universities are a political scene featuring ongoing struggles between managers and academics, then the ambiguity underlying NWoW projects is likely to be further amplified through power games and opportunistic behaviors (Crozier & Friedberg, 1980). There are, therefore, essential yet still missing links to be outlined between NWoW studies and the concept of ambiguity, which should improve our understanding of how NWoW processes are being designed in local contexts.

Ambiguity in design processes

Ambiguity is far from being an uncharted concept in organization studies, as it has received historical attention from renowned scholars in the past (Eisenberg, 1984; March, 1978) and as it continues to generate interest in contemporary management research (Urasadettan, 2019). Ambiguity has generally been viewed as a modality of indeterminacy, along with uncertainty, although scholars have attempted to draw a line between both concepts (e.g., March, 1978; Urasadettan, 2019). Uncertainty is commonly defined as a state of doubt about future events that is prompted by a lack of information or knowledge and makes it difficult for organizational actors to plan the consequences of their actions (March, 1978). By contrast, ambiguity refers to situations open to multiple interpretations, in which the future preferences and goals of the organizational actors involved are difficult to foresee, which compels a search for meaning – rather than for information (Denis et al., 2011; Friedberg, 1997; March, 1978). Faced with ambiguous situations, organizational members may develop divergent interpretations of the actions that ought to be taken according to them (Urasadettan, 2019; Van Stralen, 2015). They might have further doubts about how other members of the organization would react if their interpretations and solutions were to be endorsed. Consequently, ambiguity is about making decisions in situations, in which the strategic agenda of others, as well as their future preferences, remain unknown (Crozier & Friedberg, 1980).

On this basis, four main lines of research on ambiguity might be identified in the literature. The political view depicts ambiguity as an unavoidable component of organizations that all participants to the organizational life have to deal with and can exploit opportunistically (e.g., March & Olsen, 1975). In this perspective, ambiguity is inherently conflictual and problematic, as it turns organizations into sites of ongoing tensions (March, 1978). By contrast, in the interpretative view, ambiguity rather consists of unique experiences that can be grasped and interpreted by organizational actors to generate meaning and change, hence being the primary force driving organizing processes (Weick, 2015). Ambiguity is, therefore, depicted as moments in the course of which ‘people search for meaning, settle for plausibility, and move on’ (Weick et al., 2005, p. 419). Going one step further, the strategic view identifies ambiguity as a tool that organizational leaders can deliberately exploit to reach their goals (Davenport & Leitch, 2005; Eisenberg, 1984). Ambiguity becomes a discursive resource enabling collective action and strategic change (Jarzabkowski et al., 2010) that ‘renders decisions acceptable to participants by masking divergence’ (Denis et al., 2011, p. 238). Finally, the pragmatic approach views ambiguity as a practical necessity for organizations adopting new management trends (Giroux, 2006). Ambiguity, rather than a carefully designed strategy, can be a pragmatic way to overcome the difficulties of collective action in contexts, where new meanings emerge accidentally (Giroux, 2006). Taken together, these conceptual developments make it possible to distinguish between four properties of ambiguity, as suggested in Table 1.

 

Table 1. The four facets of ambiguity
Political ambiguity (e.g., March, 1978) Ambiguity as a problematic property of organizational contexts causing conflicts, tensions, and divergence
Interpretative ambiguity (e.g., Weick, 2015) Ambiguity as unique experiences fostering cooperation, shared meanings, and convergence
Strategic ambiguity (e.g., Eisenberg, 1984) Ambiguity as purposeful rhetorical constructions facilitating strategy elaboration and change
Pragmatic ambiguity (e.g., Giroux, 2006) Ambiguity as a resource enabling collective action in equivocal contexts while maintaining a semblance of unity

The four approaches share many common points, insofar as ambiguity is always depicted as a relational concept that can be voluntarily acted upon, nurtured, and maintained by organizational actors who can exploit it to wield power (Eisenberg, 1984; Weick, 2015). Yet, while these four facets of ambiguity are deeply intertwined with each other, the analytical distinction is of importance for conducting empirical investigations of workspace transformation projects in ambiguous contexts (Sillince et al., 2012). As illustrated previously, NWoW remains a loosely defined management fashion, which, once introduced in the particular context of academia, is likely to constitute a particularly adequate context for studying ambiguity. Consequently, bridging between these views makes it possible to better grasp ambiguity as a fundamental concept underlying NWoW projects and, more globally, organizational change processes.

Methodology

Data collection

A two-year qualitative research process was conducted from November 2016 to November 2018 in the Management Faculty (the MAF) of a Belgian University (BU) that committed to a NWoW project. The MAF was created in 2005 from the merger between an independent business school and the Faculty of Economics of the BU As a consequence of the merger, the MAF grew over the years on two sites: whereas the high school staff was located in the town center, multiple departments that once belonged to the Faculty of Economics remained housed on the BU campus, in the town’s periphery. To strengthen the collaborations between research centers and build a common identity among the staff, the direction of the MAF had for many years expressed the desire to gather the staff in the business school’s buildings. However, it was clear from the outset that the building was already saturated and could not possibly welcome the hundred members from the periphery. Early 2016, strategic discussions were reopened to find a solution to this issue, and the decision was made by the University to extend the main site of the MAF with a new building. For architectural and financial reasons, however, the authorities warned that the building had to be designed with shared and open plan offices. Following that decision, a project team was set up to select and work with the appointed architect firm on the building design.

The data collection process took place during the design stage of the project and was completed prior to the relocation to – and occupancy of – the new building. The dataset encompassed non-participant observations (20), semi-structured interviews (7), and document analyses (39). To provide a rigorous description of the change process, priority was given to in situ observations of the actors’ practices. We were granted access to meetings that took place at the MAF level and attended a total of twenty events (which roughly equates to 50 h of non-participant observation). Extensive notes were taken regarding the actors involved, their discourses and positioning, the compromises that were formed, and the decisions that were made. These first-hand accounts of the empirical fieldwork were redacted inductively, on the basis of a minimal observation grid, to avoid constraining and framing the data.

Table 2 provides an overview of the data collected throughout the change process. Because we were not allowed to attend some important meetings such as the ones involving the authorities of the University or taking place at the level of the MAF Board, seven semi-structured interviews were conducted, recorded, and fully transcribed at the end of the research process. These interviews were conducted with key strategic actors who were difficult to reach otherwise (e.g., the University’s Rector, the Facilities Manager) and were structured on the basis of a grid involving three key parts: a first asking the respondents to retrace the project’s genesis and challenges; a second about their objectives and expectations toward the change project, aimed to seize their strategies; and a third about their overall opinion about other actors involved in the project, to assess potential alliances and their perception of ambiguity.

 

Table 2. Visual representation of the data collection process
Nov. 16 Jan. 17 Feb. 17 Apr. 17 May 17 Jul. 17 Aug. 17 Oct. 17 Nov. 17 Jan. 18 Feb. 18 Apr. 18 May 18 Jul. 18 Aug. 18 Nov. 18
Non-participant observation Kickoff meeting (1) Exploratory visit (1) Exploratory working group meetings (6) Meetings with Research Units’ directors (6)
Coordination meetings between facilities and the MAF (3) Coordination meetings with architects (3)
Semi-structured interviews BU Rector and administrator (2) Facilities members (3) MAF board members (2)
Document analyses Verbatim from interviews conducted by the project manager (12) Project team working documents (10)
Documents issued from the MAF’s board (3)
Architectural documents (plans, projections, etc.) (14)
MAF, Management Faculty; BU, Belgian University.

Finally, multiple field documents were used to support the analysis. These documents included, for instance, the formal call for tenders as redacted by the Facilities Manager of the University, as well as various projective plans of the future building. We further received transcripts from 12 additional interviews conducted by a researcher involved in the project with actors of the Faculty (Board members, academics, administrative staff and student representatives), which we used once in a while as a secondary information source. Finally, the dataset also included documents used by the project teams, such as PowerPoint presentations made in front of the Faculty Board and meetings’ minutes.

Data analysis

The analysis of the dataset was performed by the three authors with the aim of structuring the material around ‘important events’ to produce a chronologically organized narrative (Czarniawska, 2004). It should be noted that all authors were part of the institution under study, albeit the second author was the only one to belong to the MAF and to be directly concerned by the change project at the time of the study. The data collection was handled independently by the first author, who was in an ideal position to act as an uninvolved, external observer in the various meetings he was allowed to attend. By contrast, the data analysis involved frequent discussions between the authors around the research material, which aimed to confront the possible interpretations of the data and took place in three steps: the sequencing of events, the attribution of importance, and the identification of ambiguities.

In the first stage, the available material was chronologically ordered according to the 3-month frames portrayed in Table 2, which resulted in eight periods of time during which the change project was being worked upon by the field actors. However, since change processes ‘rarely flow in straight lines’ (MacKay & Chia, 2013, p. 210), these periods turned out to be of unequal significance, as the project made little progress at some points and moved forward much faster at others. A second step, thus, consisted in the identification of key moments punctuating the NWoW project in the MAF. These turning points were (1) the strategic decision to design a new building; (2) the ‘kick-off’ meeting that resulted in the constitution of a project team; (3) the exploratory work conducted by the project team; (4) the building up of working subgroups; (5) the selection of an architect firm; (6) consultation rounds with Research Units’ directors; (7) meetings with the architects; and (8) the elaboration of the final plans for the new building. In this second account, the eight chronological, 3-month periods were replaced by these eight significant moments, hence resulting in a kairotic account of change – which ‘jumps and slows down, omits long periods and dwells on others’ (Czarniawska, 2004, p. 775).

This kairotic account of change brought to light the pervasiveness of ambiguity throughout the process. At each stage, the material collected suggested that the actors were constantly dealing with critical uncertainties related to the project (e.g., deadlines, architect firm selection, and exact implications of NWoW) but were also, crucially, hampered by ambiguous events and behaviors (Salancik & Pfeffer, 1974). On the one hand, as the complexity of interpreting others’ strategic agenda was a continual challenge for the involved actors, ambiguous events could be identified directly in their discourses. For instance, the project leader complained that she had to deal with the inconsistent positioning of Board Members; Facilities’ representatives expressed their discontent toward the reluctance of academics to commit to the project; project members felt they had to promote new workspaces which no one seemed to support. On the other hand, ambiguous behaviors were identified depending on the outcomes of the process. For example, while it was not made explicit by the Board members themselves, it turned out that sustaining ambiguity around the project’s goals allowed them to avoid entering into direct conflict with the staff. The case was, thus, in this third stage, reinterpreted in the light of ambiguity, simultaneously understood as a property of context and as a rhetorical construction. Ultimately, the empirical account was rewritten to emphasize four main stages in which ambiguity was particularly salient.

Ambiguity in academic workspace design: The case of the MAF

Toward a NWoW building

The NWoW project finds its roots in the merger between a management school and the Faculty of Economics, which became the MAF of a B.U. while remaining housed on two geographical sites. Over the last decade, bringing together members of the MAF had grown into a sensitive topic carrying a long history of dissatisfaction. Early 2016, strategic discussions on the matter were reopened between the MAF Board, the Facilities Manager in charge of the physical infrastructures of the University (named Fitz), and the University Board. Fitz was the first to suggest expanding the site of the management school:

‘For a long time, the MAF has been asking for more space to repatriate a series of departments working on the University campus (…) And I wanted to defend the idea of expanding their actual site. I told the Authorities, if you do something new, you can rationalize spaces (…) A detailed comparison between building on the site and relocating people elsewhere clearly showed that the first option was the best one.’ (Fitz, B.U. Facilities Manager)

The Board of the MAF welcomed the proposal positively: they could finally gather their staff in a single location while counting on the financial support of the University for doing so. Everyone agreed on the answer to bring to what had been, for the Faculty, an important issue for years. However, Fitz’s proposal relied on a constraining assumption of space rationalization. Although around a hundred employees were expected to move down to the city center to settle in the new building, Fitz warned that there would not be enough space to recreate a hundred individual offices. For financial and architectural reasons, the new building would have to be organized around shared workspaces. Endorsing the project was only possible if the Faculty consented to design the building with this restriction in mind. Still, members of the MAF Board gave their consent to move forward:

‘The MAF (Board) said, we would prefer to build on our existing site. Very well, but the next question became, how to build on the existing site? And it was obvious from the start that it was the solution with the fewer square meters available. But still, the MAF persisted and said, we will find ways to make it work!’ (B.U. Rector)

Initially, all the actors involved agreed on the new construction as being the best option for solving the MAF’s issue of staff scattering. The reduction of square meters was rapidly concealed under discourses, promoting ‘the development of new ways to work’ (Fitz) and ‘the embodiment of a new working and teaching methodology’ (BU Administrator). Strong expectations rested on the Faculty to turn the construction project into a convincing demonstration of the merits of NWoW in a university:

‘Open spaces and the likes are the current trends (…) Reducing the floor space means reducing the costs, and as a Facility Manager, I am well aware of that. But seeing the current trends in teaching, I think that this is the right direction (…) So I count on the MAF project to illustrate that it can work.’ (Fitz, B.U. Facilities Manager)

It was Fitz who, chronologically, used the term ‘NWoW’ in the first place. Building on consultancy literature, he relied on NWoW as a convenient label to maintain enough ambiguity to create a consensus among the actors involved. NWoW resonated with everyone: the Authorities viewed in the new building the opportunity to ‘embed multiple innovations such as remote working, interconnectivity, and new ways of teaching in one of our most modern Faculties’ (B.U. Administrator). Through the project, Fitz was willing to promote ways to organize and rationalize spaces that could also work in other Faculties in the future. The MAF Director himself concurred with these claims, arguing that ‘being a forerunner [was] part of the Faculty’s DNA’ (MAF Director). At the end of the day, the ambiguously labeled ‘NWoW project’ provided enough room for conciliating the interests of all the parties around the table.

Exploring NWoW

Once the decision to construct a NWoW building was acted on, Fitz initiated a kick-off meeting in November 2016 with representatives from the MAF. Four actors were introduced and would soon become pivotal in further stages of the process: a Technical Coordinator and direct subordinate of Fitz (Laura); two representatives of the MAF, including a Facility Coordinator (Jules) and the Secretary General (Marylin), who sat at the Executive Board of the MAF; and a Researcher (Ann), mandated by the Facilities Manager due to her expertise on NWoW-related questions:

‘The project of the MAF is at the leading edge of what is currently being done in the higher education sector (…) and I did not want to commit to such a project without support. What we can do is design spaces, install furniture … But we cannot bring people together, this is not our job. This is why the supportive mission of Ann appeared essential to me.’ (Fitz, BU Facilities Manager)

Fitz explained that he had to launch a public tender procedure for the construction but lacked valuable information for doing so. What teams and departments would inhabit the new building? Was it possible to assess the occupancy rate of academics and researchers’ offices? Several uncertainties related to the project were left pending, and Fitz did not have sufficient knowledge of the MAF to move on. Consequently, Ann, who had conducted prior action research projects of NWoW implementation in external firms, was mandated for carrying out the change process. In March 2017, she conducted a dozen interviews with key actors of the Faculty. In May 2017, a visit of two Dutch Universities was organized by the working group, who went exploring how NWoW projects had been deployed in similar contexts. While the working group gradually acquired valuable knowledge to carry out the project, dark spots remained numerous. It became obvious to Ann that Fitz was well decided to turn the construction project into a NWoW project built upon shared workspaces. He often spoke of it as being the result of an unavoidable constraint – arguing that the new building would be too small to recreate traditional offices anyway – as well as the vision promoted by the University. Jules and Marilyn also rapidly understood that designing shared workspaces was the main goal of the project:

‘In essence, the Facilities told us, this has to be a pilot project that sends the message that it is now over to design individual offices of twenty square meters per person. And if we give you the green light and the budgets for the construction of your new building, you have to go that way.’ (Marilyn, Secretary General)

Conversely, while the MAF Board had formally endorsed the construction project in front of the University Authorities, they showed little signs of enthusiasm toward discourses of modernization. In the interviews carried by Ann, some members of the Board stated that they could not ‘imagine sharing their office with colleagues’. Ann felt somewhat trapped by the ‘double talk’ of the Board, which did not hesitate to ‘pretend in front of the Facilities Manager’ while ‘holding a much different discourse backstage’ (Ann). Marilyn also felt as if the Facilities were pushing toward the adoption of NWoW while the Board did not seem convinced by the approach:

‘I was somewhat scared when I heard members of the executive committee say, we need an office per academic, and we do not want large open spaces … Very well. Except that, if you just take a look at the first versions of the plans, you can clearly see that you don’t have individual offices, you have open spaces … And those plans, the Board members saw them, and they did not say a word!’ (Marilyn, Secretary General)

In June 2017, Ann conducted a survey with the Faculty’s staff, which covered a broad range of questions about their work habits, and revealed a need for ‘silent rooms and convivial zones’, a ‘desire to modernize teaching practices’, as well as a ‘high need for storage spaces’ (Presentation made by Ann to the MAF Board). Following the survey, some academics began to express concerns regarding the project. Questions that had been marginally discussed so far, such as the evolution of pedagogical methods and the storage spaces, temporarily overshadowed the issues of open spaces. To tackle these issues, Ann created three exploratory working groups with voluntary members from the staff. A first of these groups investigated the topic of ‘New Ways of Learning’ (NWoL) with the aim of developing a framework including various pedagogical scenarios (ranging from the ex-cathedra course to distant learning) to provide information regarding academics’ needs in terms of classroom planning in the new construction. The second group, dedicated to remote working, attempted to develop a policy of remote working that could be formalized at the Faculty level. Finally, as more than 70% of the respondents to the survey declared important needs in terms of storage space, the third working group undertook to explore issues related to the uses of paper.

Meanwhile, Fitz had moved forward on his own. He emitted the call for tenders, and the selection process of the architect firm ended in October 2017. Each applicant had to include in his submission a two-page description of their recommendations for the implementation of a ‘NWoW’ environment. The ‘means deployed to develop new forms of work and learning environments’ were formally weighted for 20% of the final score assessed for each project. Moreover, applicants were required to include a NWoW specialist in their team. Ultimately, the actors involved in the process selected, without much controversy, a partnered architect firm to work with on the new building design.

After this move, Fitz strategically withdrew from the project. The Technical Coordinator (Laura), who had closely followed the project, was appointed Project Manager in January 2018 and became in charge of overseeing the discussions between the architect firm and the MAF. Fitz viewed the public contract as a coercive device that left no choice to the MAF but to design non-attributed workspaces in the new building:

‘The architect firm was selected based on a public contest (…) Laura’s role is to make sure that the requests from the University are followed (…) Even if users were unanimously against the project, and they say, we cannot work in this kind of environment at all … Well, you have to go through the procedure again, in front of the Board, and make a strong argument to say, this is not what we want anymore.’ (Fitz, Facilities Manager)

In March 2018, the three exploratory groups initiated by Ann were discontinued. The ‘NWoL’ group presented a final version of their pedagogical framework in front of the MAF Board. However, no further action was taken. Meetings of the ‘remote working’ group were repeatedly postponed and eventually canceled. Ann decided to design her own version of a home working charter, which was rejected by the Board, as it appeared that some members were reluctant to formalize a homeworking policy at the Faculty level. The last group concluded on the necessity to conduct another survey on the practices of the Faculty members regarding paper storage, a survey that was never undertaken. None of the actions suggested by the working group was followed by the Board. Five months after their creation, the three participative groups were all dissolved.

Members of the Board had not been asking for new pedagogies, remote working, and paperless projects; all they had initially wanted was additional working space to gather the Faculty’s staff in the same location. Consequently, they had no real interest in devoting time and energy to carry out a project that did not align with their objectives. Their ambiguous attitude toward the actual implementation of NWoW meant that other actors had no other choice but to step up and fill the blanks. Maintaining ambiguity helped the Board to avoid committing resources into the change process and to delegate the fastidious work of designing NWoW to second-line actors. As a result, the working group found themselves with the intricate task of collaborating together to design a building that would satisfy all the parties involved.

Who will move? Consulting with the research units

As coordination meetings between the working group and the architects began to be held every 2 weeks, an unexpected twist occurred. Rumors held that the building adjacent to the MAF, hereafter nicknamed ‘Snowflake’, was up for sale, and that the MAF was willing to acquire it. The tide had quickly turned: if these rumors turned out to be true, then the MAF would obtain not one, but two additional buildings. This also meant that the available space would theoretically be sufficient to recreate individual offices for everyone. Yet, the Dean of the MAF maintained that the possible acquisition of Snowflake would not ‘challenge the construction project by any means’. Meanwhile, the architects were in urgent need of answers on various points: was their initial proposal of 112 workstations for approximately 150 users suitable? What were the needs of the staff in terms of storage spaces or meeting rooms? As the planning foresaw the deposit of the building permit in October 2018, the Faculty had 6 months to provide answers to these questions. The possible acquisition of Snowflake, however, made the work of the Faculty representatives more challenging:

‘Approximately 150 people should come back to the town center, but Snowflake, if we seal the deal, may very well host half of them. So we find ourselves having to jump between designing a new building for 75 users or 150 … And that makes way too many possible scenarios. And who will decide who is going where, in the end? Someone will have to.’ (Marilyn, Secretary General)

Since the Board did not provide answers to that question, the working group decided to meet with the research units’ directors of the Faculty themselves, with the intent to design the most satisfying scenario for the staff, which would then be submitted to and hopefully endorsed by the Board. From March 2018 to May 2018, Ann, Marilyn, and Jules met with the director of each research unit of the Faculty. Not a single director turned out to be delighted at the idea of moving into a new building in which they would not have their own office anymore. For instance, the Head of the Economics research unit, the one with the most employees on the B.U. campus, reacted vehemently:

Head of economics: ‘I am quite hostile to open plan formulas. This will only encourage people to stay at home. I can tell you, honestly, if I have to share an office, I am staying at home (…) I personally don’t care because I would simply not come to the office anymore, but this would be a disaster. And as long as these questions are not solved, I will not defend the project in front of my colleagues.’ (Observation notes, April 2018)

Similar discourses were held by the Head of the Management research unit:

Head of management: ‘What you are planning to do is literally a copy-paste of what consultancy companies are doing. How is that innovative? (…) Well, for my part, I want to stay where I am now.’

Ann: ‘So you mean your current situation is ideal?’

Head of management: ‘Of course not, but in this new configuration it will be much worse. It can work for salespeople. But not for us (…) Those Facilities people, they really don’t know anything about the jobs we do.’ (Observation notes, May 2018)

Written communications also adopted a barely disguised critical tone toward the project, as evidenced by the email excerpt below, sent by the Head of Business Languages to her department colleagues:

‘As a small, prospective assignment, I ask you to imagine what an ideal open-space formula would look like to you (we will of course fight for another solution, but I guess imagining is without risks. If the simple fact of imagining an open space makes you consider suicide or gives you ulcers, then, please, forget about the assignment immediately! I only want your own good!) Some open spaces are silent like monasteries, others are like a cafeteria. What would you choose?’ (Email excerpt, October 2018)

These hostile reactions revealed a very different conception of the users by the Facilities and the MAF. For the Facilities, the NWoW project was ‘a natural evolution of the workplace that had to be followed’ (Laura, Technical Coordinator), and the mission of Ann consisted in ‘making sure that users would assimilate the project’ (Laura) and in ‘dealing with the pressures from the users so that they would not harm the project’ (Fitz, Facilities Manager). In their view, the user was merely a passive resister who had to be embarked. Laura, therefore, did not understand why the directors of the research units were acting as ‘spoiled children’ who ‘kept complaining while they were being offered a brand new building’ (observation notes). Conversely, the representatives of the MAF firmly believed that ‘people would move to the new building by choice and could not be constrained’ (Marilyn, Secretary General). In their perspective, amendments to the building had to be made, so that the users would find it suitable to their needs.

This episode illustrates how ambiguity allowed the Board to escape the tensions arising from academics’ resistance toward the project. Because the underlying principles of NWoW generated strong frustration among the staff, the Board members had limited interest in taking a clear position on a very controversial issue – deciding who would move to the new building. Rather, refusing to make clear decisions on the matter granted them a more comfortable position of neutrality. Once again, the working group had to step up, not only to carry additional work but also to face the research unit directors’ claims. Maintaining ambiguity around the relocation process made it possible for the Board to withdraw from areas of conflict and contention.

Finding a way out: The scaled-down plans

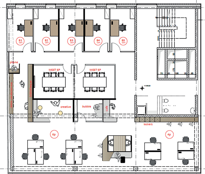
As it turned out, no one at the Faculty was really supportive of NWoW environments. The Board had merely accepted NWoW as part of a trade-off for a new building to gather the staff of the Faculty on a single site. Academics appeared at best suspicious toward the new construction. Ann was soon disillusioned, as most of the directors she met welcomed her with barely disguised hostility and viewed her as a spokesperson of a project they did not want to be a part of. However, NWoW remained a necessary concession to make to acquire a new building, which meant that Ann, Marilyn, and Jules found themselves in an intricate position, in which they had to defend and promote a project in which no one at the Faculty seemed to believe. Faced with this situation, they designed a revised version of the new building’s plans including a larger proportion of closed offices, which was validated by the Board in June 2018 and submitted to the architects shortly after. Figure 1 illustrates a floor of the new building, in which individual offices were recreated along with additional workstations in a semi-open space. What the plan discloses is that the ambitions of openness, flexibility, and desk-sharing have been largely scaled down.

MGMT-25-4447-F1
Figure 1. Plan of a sample floor of the new building

As a reminder, the call for tenders’ procedure had requested from the applicants that they include a NWoW specialist in their architect team. The specialist immediately reacted to the proposal of the working group, warning them that they were moving away from a canonical NWoW layout:

‘Our analysis reveals that the amount of closed spaces is too high for the available surfaces (…)The current proposal emphasizes the feeling of hierarchical separation through clusters of individual offices (…) Unfortunately, the current version of the plans is very close to those of a traditional administration. The functionality and the spirit of NWoW are compromised (…) You have obviously met with a lot of resistance to change (…) The initial ambition of the project that generated enthusiasm among all of us due to its audacious and modern character seems to be strongly attenuated.’ (E-mail from the NWoW consultant, June 2018)

The reaction from the NWoW consultant highlighted the gap between the layout proposed by the MAF and the ideal-typical version of a NWoW workspace promoted by consulting companies. Interestingly, both the MAF and the Facilities immediately condemned the attitude of the NWoW specialist. Marilyn argued that ‘although he [the NWoW consultant] was surely a brilliant theorist, he probably never had to manage teams of academics and researchers’. Ann claimed that ‘the distinctiveness of the context and the users had to be taken into account’. Even Laura agreed that ‘following plans built upon the feedback of the future users and validated by the Faculty’s Board appeared more judicious than enforcing the model of a subcontractor who had little knowledge of the local context’ (excerpts from internal emails, June 2018).

For the first time since the project had started, both the MAF and the Facilities agreed upon a common conception of the Faculty’s future workplace, based on a homemade and revised version of the plans, heavily influenced by academics’ complaints. Laura herself acknowledged that ‘reasonable adjustments’ could be made in order to better suit users’ needs. The working group began acting as if what NWoW meant had, all of a sudden, become crystal clear. Ann and her colleagues would frequently summon the ‘spirit of NWoW’ as an elusive argument to legitimate the architectural and organizational choices that had been made. By claiming to detain knowledge of what NWoW was, the working group succeeded in designing building plans while conferring them an illusion of clarity and credibility. Ultimately, even if NWoW remained a loose and ambiguous term, the working group managed to find this ambiguity handy for moving forward. In October 2018, the building permit was deposited, which marked the end of the design phase of the construction project. The plans included in the file contained the amendments requested by the staff – extra individual offices, additional partitions between open plans, assigned floors, and specific intra-departments arrangements. What research departments would relocate to the new building, however, remains an unsolved question to the day of writing.

Discussion

By following the design process of a NWoW project in a university over a 2-year period, the paper pursued two objectives. First, it aimed to clarify the role of ambiguity in NWoW design processes and to support a constructionist view in which NWoW is gradually defined by organizational members. Second, the study questioned the implications of NWoW projects for higher education institutions by investigating academics’ ability to influence the design process of new workspaces. Moreover, the paper developed an original way of using ambiguity as a conceptual tool for analyzing complex change processes. These points of discussion are successively detailed below.

Ambiguity in NWoW projects design

Any reader interested in studies of NWoW would probably be pleased, after a few insightful reads, to discover various definitions of NWoW built around neat and univocal dimensions, such as the Bricks-Bytes-Behaviors triptych (Kok, 2016) or the five facets of Gerards et al. (2018). He would most likely appreciate, knowing that implementing such projects requires ‘sound information and communication about the concept’ (Brunia et al., 2016, p. 44). However, if that reader ever had to witness a NWoW project in the making, he would undoubtedly face a much more chaotic reality made of divergent interpretations as to how the project should be implemented, what changes should prevail, and how to make such changes happen. The well-rounded definitions would soon be relegated to the background, the organizational members developing continuous efforts to cope with unexpected events and conciliate conflicting interests. In this paper, it is suggested that local applications of NWoW are deeply influenced by the ambiguity inherent to the design process.

Part of this ambiguity pertains to the conflicting interpretations that arise locally around the characteristics of NWoW projects. Since what the label ‘NWoW’ means remains open for interpretation and negotiation, organizational members are expected to take advantage of this ambiguity to promote a version of NWoW that best serves their own interests (Crozier & Friedberg, 1980; Salancik & Pfeffer, 1974). This is precisely what the case study illustrates: for the Facilities, NWoW is a means of rationalizing space; for the Board, it is a trade-off to obtain funds for a new building; for the academic staff, it is an unwanted mode of space organization that should be avoided at all costs; for Ann, it is a large umbrella covering ‘new ways of learning’, remote working, and digitalization; for the external consultant, NWoW is a well-established concept of space organization. There appear to be as many interpretations of what NWoW is as there are actors involved in the change process. It is, therefore, essential to account for the ambiguity that underlies NWoW projects, as it is the actors’ reactions to ambiguous events and behaviors that will determine their outcomes.

As shown by prior research, ambiguity is rooted in collective action, as it arises from complications of guessing others’ future preferences (March, 1978). As they frequently involve major spatial, organizational, and/or technological transformations, NWoW projects are expected to mobilize many actors – project groups and task forces of all sorts. It follows that considerable work is performed by organizational members who have their own interests and objectives, which exacerbates the number of conflicting interpretations. This is all the more true since NWoW is often associated with participatory approaches to change that encourage workers’ implication (Bijl, 2011; Jemine et al., 2020b), hence opening the door to further ambiguities, conflicts, and negotiations. In this picture, the repeated expansion of the actors and interests involved throughout the change process requires sustained efforts to maintain cooperation (Friedberg, 1997). Reducing, embracing, and sustaining ambiguity appear to be central in the work that actors do when they design NWoW projects.

What are the implications of these findings for future research on NWoW? Two roads could possibly be followed. A first way out would be to turn a blind eye on ambiguities underlying NWoW projects as well as on the conflicts, power games, and negotiations that occur throughout the change process, dismissing these behaviors under the convenient black-box of ‘resistance to change’ (e.g., Brunia et al., 2016; Peters, 2014). In this view, there would be ‘good’ cases of NWoW projects, in which optimal change management and communication practices abolish ambiguities, and ‘worst’ cases where organizations fail to do so (Brunia et al., 2016). An alternative is to take ambiguity seriously, as an analytical concept that lies at the heart of design and implementation processes of NWoW projects. In this view, researchers should pay more attention to the continuous political work accomplished by the organizational actors who strive to produce meaningful definitions of NWoW in ambiguous contexts, as this work will ultimately dictate how NWoW projects unfold.

NWoW projects in higher education institutions

We posited in this paper that academia should provide an insightful context for studying NWoW while noting that, paradoxically, NWoW projects in universities received limited attention so far (Gorgievski et al., 2010). Specifically, projects of workspace reorganization have often been viewed as managerial attempts to regain control over academic activities (Baldry & Barnes, 2012; Kuntz et al., 2012) and have been repeatedly depicted as power struggles between managers and academics (Berthelsen et al., 2018; Vitasovich et al., 2016). Our findings indicate that dissatisfaction factors prevalent among academics in open and flexible workspaces, such as the lack of privacy (Baldry & Barnes, 2012; Gorgievski et al., 2010; Pinder et al., 2009) or decreased productivity (Veer & Dobele, 2018) were for the most part anticipated by the actors themselves long before they actually move to such environments. However, the study also brings novel insights into the defiance and skepticism of academics toward NWoW projects, as it suggests that their hostility is neither merely resistance to change (Lansdale et al., 2011) nor a spontaneous cultural reaction toward managerialism (Berthelsen et al., 2018), but rather a purposeful strategy that allows them to regain some power in the course of the design process.

The existing literature on NWoW projects in universities has generally depicted academics as finding themselves overwhelmed by transformation projects of their workspaces on which they have no influence or control (e.g., Muhonen & Berthelsen, 2021). By contrast, the study ends with a final version of the plans, in which the initial ambitions of space design have been considerably toned down following negotiations with the staff. Several moments in the course of the project – the survey, the exploratory working groups, and meetings with the department heads – provided academics with opportunities to weigh upon the change process. Academics were able to ‘fight back’ by playing with ambiguity, which is best illustrated in the case by the working group purposefully claiming to know what ‘the spirit of NWoW’ entails, hence turning ambiguity into a semblance of knowledge granting power. This suggests that academics can, by exploiting ambiguity, twist NWoW projects and influence their outcomes before they are actually implemented.

A future avenue for research could consist in paying more attention to the conditions that make it possible for academics to affect NWoW projects’ design. The case study investigates a NWoW project that originates from an ambiguous compromise between institutional authorities and Faculty management: financial means are to be allocated for additional workspaces if these workspaces are designed in a rationalized way, and NWoW appears to be a handy label to cover this trade-off. It follows that no one at the Faculty level is particularly thrilled by the perspective of a NWoW project – which might be a major difference with other organizations in which such projects are driven by a handful of convinced leaders (e.g., Jemine et al., 2020a). Attempts to promote specific meanings or to persuade the staff of the merits of the project, which are common in change processes (Weick et al., 2005), are surprisingly rare in the present case study. This situation, in turn, generates additional ambiguity that academics can exploit opportunistically, which suggests that high levels of ambiguity and an absence of clear leadership could leave NWoW projects more open-ended and provide more room for academics to bargain.

Ambiguity and change

We suggested distinguishing between four types of ambiguity for analytical purposes. NWoW design can be read under the lens of political ambiguity: several actors are struggling to grasp others’ preferred courses of action. It is also possible to narrate NWoW design from the perspective of interpretative ambiguity: the actors in charge of NWoW projects endure multiple tests in which they are confronted with conflicting meanings and attempt to make sense of the situation they are in. Emphasizing strategic ambiguity, we can underline occurrences in which the actors in power purposefully sustain ambiguity to serve their interests (e.g., avoid conflicts, delegate work, and dismiss ideas from the staff). Finally, the case also illustrates how maintaining pragmatic ambiguity facilitates decision-making processes, and how NWoW appears to be a handy label to conduct an open-ended change project.

Ambiguity in change processes can, therefore, be understood as a property of events that actors have to overcome, as a product of discourses and rhetoric, as a purposeful strategy maintained by key actors, and as an unintentional effect of action. We hold that the four types of ambiguity are intrinsically related and shape each other continuously (Sillince et al., 2012). Taken together, they offer a more comprehensive overview of what ambiguity does: it triggers conflicts and induces power games (March, 1978); it forces actors to sort out meanings and prioritize interpretations (Weick, 2015); it offers creative strategic responses in the face of uncertainty (Davenport & Leitch, 2005); and it makes it possible to promote a vaguely defined change project while avoiding controversy (Gioia et al., 2012; Giroux, 2006). Yet, despite the fact that ambiguity is seemingly everywhere in design processes, the existing literature has, so far, not attempted to conciliate and articulate these four perspectives on ambiguity.

We argue that the typology of ambiguity developed in this paper may be helpful for further analyses of major strategic change projects (Gioia et al., 2012). So far, ambiguity has remained a challenging concept to master, as it simultaneously facilitates change processes (Davenport & Leitch, 2005; Giroux, 2006) while making them more complex (March & Olsen, 1975; Van Stralen, 2015); it not only divides the actors involved on the preferred course of action (Eisenberg, 1984) but can also be used to establish alliances between them (Denis et al., 2011); it can shield deciding instances from close scrutiny (Davenport & Leitch, 2005) or can expose them to fierce criticism; it can simultaneously be a resource to draw upon (Denis et al., 2011; Gioia et al., 2012) and a problem to solve (Hällgren & Maaninen-Olsson, 2005). Ambiguity, then, is multifaceted, and its power as an analytical concept lies in its potential to bridge between individual rationalities, collective strategies, and organizational decision-making, hence offering promising perspectives to understand complex change projects. If we assume that ambiguity consistently guides what actors involved in change projects do, it logically follows that researchers interested in studying these projects should pay particular attention to identifying these ambiguities and following the activities undertaken by organizational members to answer, resolve, or maintain them. However, doing so requires an in-depth understanding of the subtleties of the concept, and we argue that the distinction between political, interpretative, strategic, and pragmatic ambiguity constitutes a first step in that direction.

Conclusion

Through an empirical investigation of the role of ambiguity in the design stage of a NWoW project in academia, this paper contributes to the literature in three different ways. First, this study demonstrates that NWoW involves projects of organizational change that are ambiguous and open-ended. NWoW appears to be a vague yet convenient label that generates ambiguity at the local level and can be exploited opportunistically by organizational members. Second, considering the specific context of universities, this paper shows that academics may use ambiguity as a lever of power to weigh upon the outcomes of NWoW projects in the early stages of design. It is suggested that higher levels of ambiguity offer more opportunities for academics to negotiate and regain a voice in the course of such processes. Third, this paper develops a typology of ambiguity to better grasp its role in complex projects of organizational change. Ultimately, this paper opens up new avenues for advancing our understanding of contemporary workspace transformation projects. This is particularly significant in the current context, as many organizations are expected to rethink their future offices in the wake of the COVID-19 crisis and the massive remote working experience. Further processual research in these organizations should be encouraged with the aim of providing in-depth insights into local ambiguities underlying NWoW and grasping the intricacies of the change processes through which NWoW – or further workspace transformation projects – takes shape.

Acknowledgments

The authors would like to thank Viviane Sergi, editor, and the three anonymous reviewers for their insightful feedback.

References

Aroles, J., Mitev, N. & De Vaujany, F. (2019). Mapping themes in the study of new work practices. New Technology, Work, and Employment, 34(3), 285–299. doi: 10.1111/ntwe.12146
Baane, R., Houtkamp, P. & Knotter, M. (2010). Het nieuwe werken ontrafeld. Over bricks, bytes and behavior. Koninklijke Van Gorcum.
Baldry, C. & Barnes, A. (2012). The open-plan academy: Space, control and the undermining of professional identity. Work, Employment and Society, 26(2), 228–245. doi: 10.1177/0950017011432917
Berthelsen, H., Muhonen, T. & Toivanen, S. (2018). What happens to the physical and psychosocial work environment when activity-based offices are introduced into academia? Journal of Corporate Real Estate, 20(4), 230–243. doi: 10.1108/jcre-06-2017-0017
Bijl, D. W. (2011). Journey towards the new way of working. Creating sustainable performance and joy at work. Zeewolde.
Blok, M., Groenesteijn, L., Schelvis, R. & Vink, P. (2012). New ways of working: Does flexibility in time and location of work change work behavior and affect business outcomes? Work, 41, 2605–2610. doi: 10.3233/wor-2012-1028-2605
Brunia, S., De Been, I. & Van der Voordt, T. (2016). Accommodating new ways of working: Lessons from best practices and worst cases. Journal of Corporate Real Estate, 18(1), 30–47. doi: 10.1108/jcre-10-2015-0028
Crozier, M. & Friedberg, E. (1980). Actors & systems. The politics of collective action. The University of Chicago Press.
Czarniawska, B. (2004). On time, space, and action nets. Organization, 11(6), 773–791. doi: 10.1177/1350508404047251
Czarniawska, B. (2008). Organizing: How to study it and how to write about it. Qualitative Research in Organizations and Management, 3(1), 4–20. doi: 10.1108/17465640810870364
Davenport, S. & Leitch, S. (2005). Circuits of power in practice: Strategic ambiguity as delegation of authority. Organization Studies, 26(11), 1603–1623. doi: 10.1177/0170840605054627
De Leede, J. (2017). New ways of working practices: Antecedents and outcomes. Emerald Group Publishing Limited.
Demerouti, E., Derks, D., Ten Brummelhuis, L. & Bakker, A. (2014). New ways of working: Impact on working conditions, work-family balance, and well-being. In C. Korunka & P. Hoonakker (Eds.), The impact of ICT on quality of working life (pp. 123–141). Springer. doi: 10.1007/978-94-017-8854-0_8
Denis, J., Dompierre, G., Langley, A. & Rouleau, L. (2011). Escalating indecision: Between reification and strategic ambiguity. Organization Science, 22(1), 225–244. doi: 10.1287/orsc.1090.0501
Eisenberg, E. (1984). Ambiguity as strategy in organizational communication. Communication Monographs, 51(3), 227–242. doi: 10.1080/03637758409390197
Engelen, L., Chau, J., Young, S., Mackey, M. et al. (2019). Is activity-based working impacting health, work performance and perceptions? A systematic review. Building Research and Information, 47(4), 468–479. doi: 10.1080/09613218.2018.1440958
Friedberg, E. (1997). Local orders: Dynamics of organized action. Jai Press.
Gerards, R., Grip, A. & Baudewijns, C. (2018). Do new ways of working increase work engagement? Personnel Review, 47(2), 517–534. doi: 10.1108/pr-02-2017-0050
Gioia, D., Nag, R. & Corley, K. (2012). Visionary ambiguity and strategic change: The virtue of vagueness in launching major organizational change. Journal of Management Inquiry, 21(4), 364–375. doi: 10.1177/1056492612447229
Giroux, H. (2006). ‘It was such a handy term’: Management fashions and pragmatic ambiguity. Journal of Management Studies, 43(6), 1227–1260. doi: 10.1111/j.1467-6486.2006.00623.x
Gorgievski, M., Van der Voordt, T., Van Herpen, S. & Van Akkeren, S. (2010). After the fire: New ways of working in an academic setting. Facilities, 28(3/4), 206–224. doi: 10.1108/02632771011023159
Hällgren, M. & Maaninen-Olsson, E. (2005). Deviations, ambiguity and uncertainty in a project-intensive organization. Project Management Journal, 36(3), 17–26. doi: 10.1177/875697280503600303
Hutson, A. & McAlinden, A. (2013, September 15–18). Workshopping the workspace: Consultation in designing the shared academic workspace. In I. Dobson, R. Sharma & M. Conway (Eds.), Tertiary Education Management Conference 2013 Refeered Papers (pp. 107–125).
Jarzabkowski, P., Sillince, J. & Shaw, D. (2010). Strategic ambiguity as a rhetorical resource for enabling multiple interests. Human Relations, 63(2), 219–248. doi: 10.1177/0018726709337040
Jemine, G. (2021). Deconstructing new ways of working: A five-dimensional conceptualization proposal. In N. Mitev, J. Aroles, K. Stephenson & J. Malaurent (Eds.), New ways of working: Organizations and organizing in the digital age (pp. 453–480). Palgrave Macmillan. doi: 10.1007/978-3-030-61687-8_18
Jemine, G., Dubois, C. & Pichault, F. (2020a). From a new workplace to a new way of working: Legitimizing organizational change. Qualitative Research in Organizations and Management, 15(3), 257–278. doi: 10.1108/qrom-10-2018-1690
Jemine, G., Dubois, C. & Pichault, F. (2020b). When the Gallic village strikes back: The politics behind ‘new ways of working’ projects. Journal of Change Management, 20(2), 146–170. doi: 10.1080/14697017.2020.1720777
Jemine, G., Fauconneau-Dufresne, S., Pichault, F. & Rondeaux, G. (2021). Beyond flexibility: Confronting conceived and lived spaces of new ways of working. In N. Mitev, J. Aroles, K. Stephenson & J. Malaurent (Eds.), New ways of working: Organizations and organizing in the digital age (pp. 293–318). Palgrave Macmillan. doi: 10.1007/978-3-030-61687-8_12
Karasti, H., Baker, K. S. & Millerand, F. (2010). Infrastructure time: Long-term matters in collaborative development. Computer Supported Cooperative Work, 19(3–4), 377–415. doi: 10.1007/s10606-010-9113-z
Kingma, S. (2019). New ways of working (NWW): Work space and cultural change in virtualizing organizations. Culture and Organization, 25(5), 383–406. doi: 10.1080/14759551.2018.1427747
Kok, A. (2016). The new way of working: Bricks, bytes, and behavior. In L. Jungwoo (Ed.), The impact of ICT on work (pp. 9–40). Springer. doi: 10.1007/978-981-287-612-6_2
Kotesveld, R. & Kamperman, L. (2011). How flexible workspace strategies can be made successful at the operational level. Corporate Real Estate Journal, 1(4), 303–319.
Kuntz, A., Petrovic, J. & Ginocchio, L. (2012). A changing sense of place: A case study of academic culture and the built environment. Higher Education Policy, 25(4), 433–451. doi: 10.1057/hep.2011.29
Lai, C., Bobillier-Chaumon, M., Vacherand-Ravel, J. & Abitan A. (2021). Thinking activity-based work environment throughout situated acceptance. Journal of Workplace Learning, 33(1), 10–25. doi: 10.1108/jwl-02-2020-0027
Lancione, M. & Clegg, S. (2013). The chronotypes of change: Actor-networks in a changing business school. Journal of Change Management, 13(2), 117–142. doi: 10.1080/14697017.2012.753930
Lansdale, M., Parkin, J., Austin, S. & Baguley, T. (2011). Designing for interaction in research environments: A case study. Journal of Environmental Psychology, 31(4), 407–420. doi: 10.1016/j.jenvp.2011.05.006
MacKay, R. & Chia, R. (2013). Choice, chance, and unintended consequences in strategic change: A process understanding of the rise and fall of Northco Automotive. Academy of Management Journal, 56(1), 208–230. doi: 10.5465/amj.2010.0734
March, J. (1978). Bounded rationality, ambiguity, and the engineering of choice. The Bell Journals of Economics, 9(2), 587–608. doi: 10.2307/3003600
March, J. & Olsen, J. (1975). The uncertainty of the past: Organizational learning under ambiguity. European Journal of Political Research, 3(2), 147–171. doi: 10.1111/j.1475-6765.1975.tb00521.x
Muhonen, T. & Berthelsen, H. (2021). Activity-based work and its implications for the academic work environment. Journal of Applied Research in Higher Education, 13(3), 889–899. doi: 10.1108/jarhe-02-2020-0046
Parkin, J., Austin, S., Pinder, J., Baguley, T. et al. (2011). Balancing collaboration and privacy in academic workspaces. Facilities, 29(1), 31–49. doi: 10.1108/02632771111101313
Peters, P. (2014). Enjoying new ways to work: An HRM-process approach to study flow. Human Resource Management, 53(2), 271–290. doi: 10.1002/hrm.21588
Pinder, J., Parkin, J., Austin, S., Duggan, F. et al. (2009). The case for new academic workspaces. Loughborough University.
Salancik, G. & Pfeffer, J. (1974). The bases and uses of power in organizational decision making: The case of a university. Administrative Science Quarterly, 19(4), 453–473. doi: 10.2307/2391803
Samson, D. (2013). From the ivory tower to activity-based workspaces. International Journal of Information and Education Technology, 3(6), 624–626. doi: 10.7763/ijiet.2013.v3.349
Sillince, J., Jarzabkowski, P. & Shaw, D. (2012). Shaping strategic action through the rhetorical construction and exploitation of ambiguity. Organization Science, 23(3), 630–650. doi: 10.1287/orsc.1110.0670
Urasadettan, J. (2019). The impact of project ambiguity on the forms of cooperation developed: The merging of two hospital care units. M@n@gement, 22(1), 56–91. doi: 10.3917/mana.221.0056
Van Marrewijk, A. & Van den Ende, L. (2018). Changing academic work places: The introduction of open-plan offices in universities. Journal of Organizational Change Management, 31(5), 1119–1137. doi: 10.1108/jocm-02-2017-0039
Van Stralen, D. (2015). Ambiguity. Journal of Contingencies and Crisis Management, 23(2), 47–53. doi: 10.1111/1468-5973.12082
Veer, E. & Dobele, A. (2018). My best writing space: Understanding academics self-professed writing spaces. Higher Education, 78(2), 345–364. doi: 10.1007/s10734-018-0346-y
Veldhoen, E. (2005). The art of working. Academic Service.
Vitasovich, A., Kiroff, L. & Boon, J. (2016, July 6–8). The adoption of modern office workspaces by tertiary education institutes: A case study of Unitec. In 40th AUBEA Conference (pp. 797–807).
Weick, K. (2015). Ambiguity as grasp: The reworking of sense. Journal of Contingencies and Crisis Management, 23(2), 117–123. doi: 10.1111/1468-5973.12080
Weick, K., Sutcliffe, K. & Obstfeld, D. (2005). Organizing and the process of sensemaking. Organization Science, 16(4), 409–421. doi: 10.1287/orsc.1050.0133
Wilhoit, E., Gettings, P., Malik, P., Hearit, L. et al. (2016). STEM faculty responses to proposed workspace changes. Journal of Organizational Change Management, 29(5), 804–815. doi: 10.1108/jocm-04-2015-0064
Wyllie, T., Greene, M., Nagrath, R. & Town, A. (2012). Activity based working. Jones Lang LaSalle Report, pp. 1–16.